Quadrilocale in vendita

Fondi, Appartamento Via Canneto
€ 170.000
4 locali 4 locali
60 Mq 60 Mq
1 bagno 1 bagno

Quadrilocale in vendita

Fondi, Appartamento Via Canneto

Descrizione annuncio

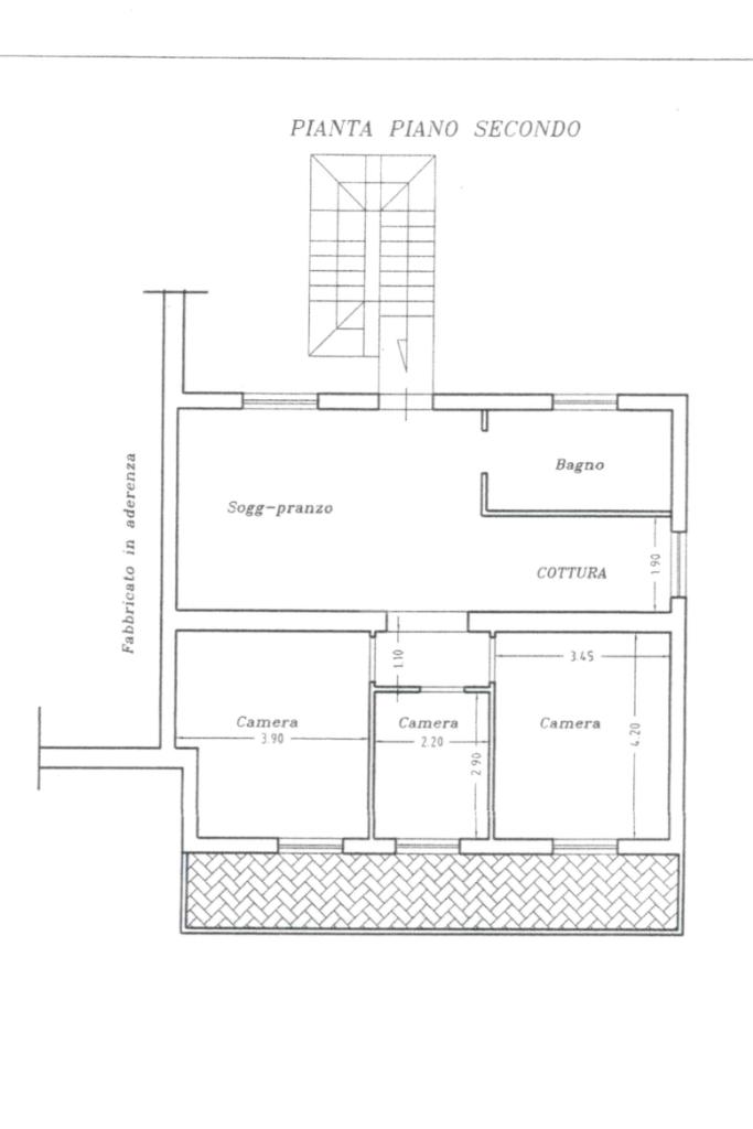
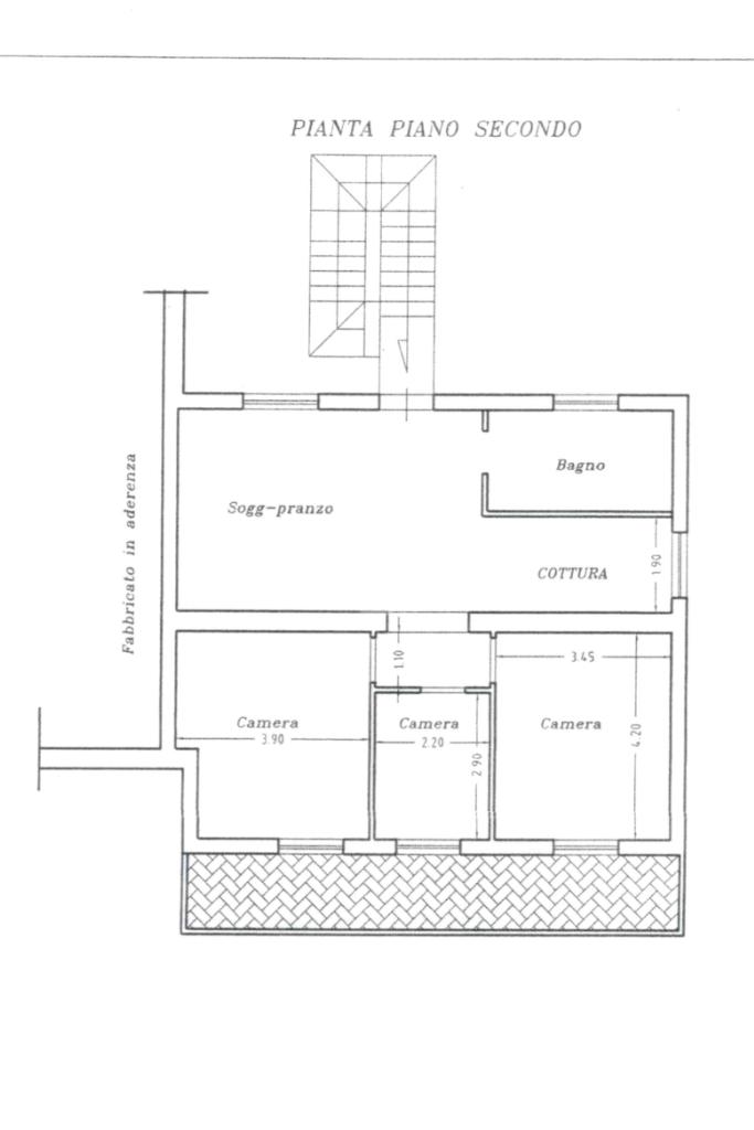
Fondi, in località Torre Canneto, proponiamo in vendita un appartamento di 60mq con garage e giardino.

L'immobile posto al secondo piano, si sviluppa con una zona giorno open space, bagno finestrato con doccia e tre camere da letto (due matrimoniali e una cameretta), aventi uscita diretta sul balcone.

La soluzione inoltre, dispone di un giardino di 290mq circa e di un garage di 35mq, con ulteriore bagno di servizio con doccia.

Situata in un contesto tranquillo, si trova a pochi passi dai principali servizi (bar, supermercato, pizzeria..) e dal mare, raggiungibile comodamente a piedi o in bicicletta.

Contattaci per maggiori informazioni.

Mostra tutto

Nelle vicinanze

Trasporto pubblico Trasporto pubblico
Trasporto pubblico
150 m
Supermercati Supermercati
Supermercati
160 m
Negozi Negozi
Negozi
570 m
Ristoranti Ristoranti
Ristorante Pizzeria Il Pomodoro
590 m
Il Tucano
1,6 Km
Ristoranti
1,8 Km
Mostra tutto

Caratteristiche

Rif.:
61177673
Piano:
2 di 2 (Piano medio)
Box:
1
Posti auto:
1
Balconi:
1
Camere da letto:
3
Mostra tutto
Prezzo Prezzo
€ 170.000
Rata mutuo Rata mutuo
€ 801 / mese
Spese annue Spese annue
€ 0
Proponi il tuo prezzoProponi il tuo prezzo

Classe Energetica

G
G
G
G
G
G
G
G
G
EP globale non rinnovabile:
0.00 kW h/m² anno
EP globale rinnovabile:
200.00 kW h/m² anno
EP invernale del fabbricato:
EP estiva del fabbricato:
Anno di costruzione:
1973
Riscaldamento:
Assente

Ti interessa visionare l'immobile?

Fissa un appuntamento  Fissa un appuntamento

Richiedi informazioni

Clicca su Leggi per aprire l'informativa
* Questi campi sono obbligatori

Calcola il tuo mutuo

Semplice e senza impegno
Anticipo

( % )
Mutuo

( % )

pochi semplici passi

inserisci i tuoi dati
Questionario completato
Grazie per aver richiesto un appuntamento senza impegno con un nostro Consulente del Credito e Assicurativo.

Hai inserito correttamente tutti i dati necessari e a breve riceverai una e-mail con un link da convalidare per inviare i tuoi dati.
Affiliato
Immobiliare Fondi Srl
Corso Italia, 38 04022 Fondi (LT)

Il nostro staff


  • Alessandro Bodesmo
    Collaboratore

  • Matteo Di Fazio
    Collaboratore

  • Antonietta Giardino
    Collaboratrice

  • Marco Delfino
    Affiliato
Corso Italia, 38 04022 Fondi (LT)
Zona: Fondi
Mostra su mappa
Orari: Lunedì mattina CHIUSO, pomeriggio 15.30 - 19:30 Dal Martedì al Venerdì 9.00 - 13.00 / 15:30 -19:30 Sabato 9.00 - 16.30 Domenica CHIUSO
Affiliato
Immobiliare Fondi Srl
Corso Italia, 38 04022 Fondi (LT)

2026 Tecnocasa Franchising S.p.A. - P. IVA 08365160152 - Via Monte Bianco 60/A 20089 Rozzano (MI). Ogni agenzia ha un proprio titolare ed è autonoma. Privacy policy | Policy utilizzo | Cookie policy